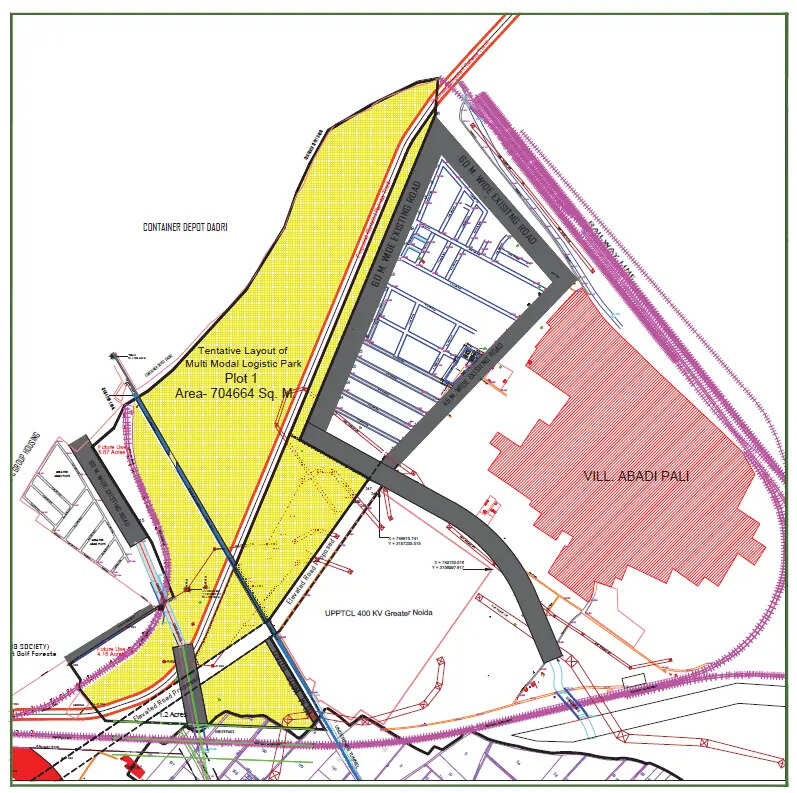
Noida: Greater Noida Industrial Development Authority (GNIDA) has moved to appoint a developer for a multi-modal logistics park in Kappa-II, near the Inland Container Depot in Dadri. Spread over 174 acres, the proposed facility is strategically located close to Noida International Airport and will have access to both the Eastern and Western freight corridors. GNIDA has issued a tender to select a developer through an e-auction process for the project.“The project will strengthen Greater Noida’s image as an industrial hub with strong logistics facilities. This will also save cost in logistics for businesses in the area,” said GNIDA ACEO Saumya Srivastava.The project is estimated to generate around 5,000 jobs.As per the tender, the selected applicant will be required to invest a minimum of around Rs 1,000 crore in the project. The allotment of the plot will be made on a leasehold basis for a period of 90 years. The applicant must have at least 10 years of experience in the logistics sector. Registration process started on March 28 and last date for submission is June 27.The date for the e-auction will be notified separately, officials said.GNIDA launched this project last year when three firms – Adani Ports and Special Economic Zone Ltd, Super Handlers, and Empezar Logistics – submitted their proposals for the project. Following evaluation of those proposals, the Authority has now moved ahead with the tendering process to finalize a developer through e-tendering, where the highest bidder will bag the project.It will cover around 7 lakh sq.m earmarked for core logistics and warehousing activities. The reserve price of the land has been fixed at Rs 11,000 per sq.m. The proposed park will include container terminals, cargo yards, cold storage warehouses, and facilities for handling bulk and break-bulk cargo. The developer can establish rail-linked multimodal logistics facilities for cargo handling and transportation services, along with dedicated cargo handling yards equipped with mechanized solutions for bulk cargo. The plan also includes mechanized warehousing and specialized storage solutions, including cold storage, as well as trucking business facilities to support first- and last-mile transportation of goods.This project is set to come up in addition to another multimodal logistics hub being developed by the Integrated Industrial Township Greater Noida Limited under the Delhi-Mumbai Industrial Corridor (DMIC) in Bodaki.Officials said that the project is expected to act as a major catalyst for industrial growth in the region by addressing one of the key challenges faced by industries – the need for efficient and cost-effective logistics. By integrating road, rail and air connectivity at a single location, the multimodal logistics park will reduce dependence on fragmented transport systems, enabling industries to move raw materials and finished goods faster while lowering logistics costs.

Map of Multi-Modal Logistic Park in Dadri
